| 地址 | 东京都中野区弥生町2 | ||
| 价格 | 人民币:1756万 | 租金回报 | 预计5.04% |
| 建筑年代 | 预计2020年9月中旬竣工 | 建筑结构 | 钢筋混凝土造 |
| 房产面积 | >90㎡ | 土地面积 | 109.37㎡ |
| 阳台面积 | 车库面积 | ||
| 总户数 | 11户 | 所在层 | 1-4 |
| 房型 | 1室 | 朝向 | |
| 租赁情况 | 租金 | 约13,512,000日元/年 | |
| 管理费 | 修缮费 | ||
| 建蔽率 | 60% .70% | 容积率 | 200% |
| 用途地域 | 第1种住居地域 | 土地权利 | 永久产权 |
| 交通 | ◇东京メトロ丸の内线【中野新桥】站徒步3分钟; ◇东京メトロ丸の内线【中野坂上】站徒步12分钟; ◇都营大江户线【西新宿五丁目】站徒步12分钟 | ||
林 武振 営業部
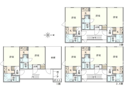
预计2020年9月中旬竣工的整栋投资公寓,永久产权,符合新抗震标准。位于东京都中野区,2线3站可以利用,距最近车站【中野新桥】站徒步3分钟,直通新宿11分钟,通往涩谷18分钟,交通便利。周边众多的购物店,金融机关,教育机构,医院等生活公共设施完善,均徒步便可到达。公寓钢筋混凝土造4层,全11户,1室,面积19.34㎡~19.98㎡不等,有1台停车位,配有带监视器自动锁,快递箱,拨号式邮箱,室内生活配套设施齐全,厨具,空调,收纳,鞋柜,独立洗面台,卫浴分离,浴室换气烘干器,室内洗衣机放置处等,轻松拎包入住,投资表面回报5.04%,另外,物件可以申请日本银行贷款,首付4-5成,贷款利率2.9%,贷款周期25年。撬动杠杆不但可以增加收益,还降低了投资风险!欢迎咨询。
东京 中野区
东京(とうきょう、Tōkyō),是位于日本关东平原中部面向东京湾的国际大都市,日本三大都市圈之一东京都市圈的中心城市。“东京”狭义上指东京都、旧东京府或东京都区部(旧东京市),亦可泛指东京都市圈 。东京是江户幕府的所在地,江户在庆应4年7月(1868年9月)改名为东京。由于东京都包含了囊括了冲之鸟礁与南鸟岛的小笠原诸岛,所以东京都也是位于日本最南端以及最东端的都道府县。 地址:东京都中野区弥生町2
交通:◇东京メトロ丸の内线【中野新桥】站徒步3分钟;
◇东京メトロ丸の内线【中野坂上】站徒步12分钟;
◇都营大江户线【西新宿五丁目】站徒步12分钟
您会在一个工作日内得到置业顾问的联络
Array
现在就与专业咨询顾问沟通!
中国
400-810-8810
日本
03-3830-0907
信息保护中请放心填写
微信咨询:
-
移民
-
房产
-
合作
-
公众号
日本房产投资移民线上、线下说明会!
Online & Offline Explanation Session of Japan Real Estate , Investment & Migrant
活动时间:线下说明会:2021年5月29日至11月19日;线上说明会:长期
活动地点:中国北京市朝阳区建国门外大街1号国贸写字楼1座1118-16室。详情请加微信:13331189026
说明会详情>
立即报名>

扫码关注我们
了解更多报名活动消息!
预约电话:13331189026
微信预约:13331189026