| 地址 | 东京都台东区浅草3 | ||
| 价格 | 人民币:1555万 | 租金回报 | 预计6.33% |
| 建筑年代 | 1991年5月 | 建筑结构 | 钢筋混凝土造 |
| 房产面积 | >90㎡ | 土地面积 | 109.68㎡ |
| 阳台面积 | 车库面积 | ||
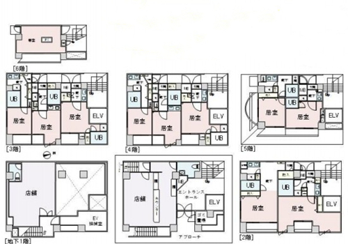
| 总户数 | 13户 | 所在层 | 地上6层 付地下1层 |
| 房型 | 住居×11 店铺×2 | 朝向 | |
| 租赁情况 | 出租中 | 租金 | 约14,882,040日元/年 |
| 管理费 | 修缮费 | ||
| 建蔽率 | 80% | 容积率 | 700%.400% |
| 用途地域 | 商业地域 | 土地权利 | 永久产权 |
| 交通 | ◇つくばエクスプレス线【浅草】站徒步4分钟; ◇都营浅草线.东京メトロ银座线【浅草】站徒步14分钟 | ||
白 吉 営業部
公寓于1991年5月建成,永久产权,符合新抗震标准。位于东京都台东区,3条线路可以利用,物件距最近车站【浅草】站徒步4分钟,交通便捷,邻近浅草寺,国际大街。公寓周边有多家超市,便利店,还有邮局,银行,图书馆,警署等均徒步可以到达,生活非常方便。棕色,灰色相结合的外观,东南角地,钢筋混凝土造6层付地下1层,有电梯,全13户,其中2户店铺,11户住居,室内生活配套设施齐全,目前出租中,表面回报6.33%,地下1层空室,房主可以自己自由利用,另外,物件可以申请日本银行贷款,首付4-5成,贷款利率2.9%,贷款周期25年。撬动杠杆不但可以增加收益,还降低了投资风险!欢迎咨询。
东京 台东区
东京(とうきょう、Tōkyō),是位于日本关东平原中部面向东京湾的国际大都市,日本三大都市圈之一东京都市圈的中心城市。“东京”狭义上指东京都、旧东京府或东京都区部(旧东京市),亦可泛指东京都市圈 。东京是江户幕府的所在地,江户在庆应4年7月(1868年9月)改名为东京。由于东京都包含了囊括了冲之鸟礁与南鸟岛的小笠原诸岛,所以东京都也是位于日本最南端以及最东端的都道府县。 地址:东京都台东区浅草3
交通:◇つくばエクスプレス线【浅草】站徒步4分钟;
◇都营浅草线.东京メトロ银座线【浅草】站徒步14分钟
您会在一个工作日内得到置业顾问的联络
Array
现在就与专业咨询顾问沟通!
中国
400-810-8810
日本
03-3830-0907
信息保护中请放心填写
微信咨询:
-
移民
-
房产
-
合作
-
公众号
日本房产投资移民线上、线下说明会!
Online & Offline Explanation Session of Japan Real Estate , Investment & Migrant
活动时间:线下说明会:2021年5月29日至11月19日;线上说明会:长期
活动地点:中国北京市朝阳区建国门外大街1号国贸写字楼1座1118-16室。详情请加微信:13331189026
说明会详情>
立即报名>

扫码关注我们
了解更多报名活动消息!
预约电话:13331189026
微信预约:13331189026