| 地址 | 东京都世田谷区三轩茶屋2 | ||
| 价格 | 人民币:2095万 | 租金回报 | 预计5.86% |
| 建筑年代 | 2017年8月 | 建筑结构 | 木造 |
| 房产面积 | >90㎡ | 土地面积 | 166.11㎡ |
| 阳台面积 | 车库面积 | ||
| 总户数 | 所在层 | 1-2 | |
| 房型 | 店铺 | 朝向 | |
| 租赁情况 | 满室出租中 | 租金 | 20,526,000日元/年 |
| 管理费 | 修缮费 | ||
| 建蔽率 | 80% | 容积率 | 500% |
| 用途地域 | 商业地域 | 土地权利 | 永久产权 |
| 交通 | ◇东急田园都市线【三轩茶屋】站徒步4分钟; ◇世田谷线【三轩茶屋】站徒步4分钟 | ||
薛 丽斌 営業部
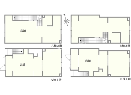
2017年8月建成的整栋投资店铺,永久产权,符合新抗震标准。位于东京都世田谷区,2条线路可以利用,物件距最近车站【三轩茶屋】站徒步4分钟,交通便利。附近有大学,又邻近涩谷等地,生活机能很好,有复古情怀的商店街,也有文青咖啡馆,日式杂货店,各种饮食店,还有东京仅存的路面电车,饱受年轻人喜爱,充满活力。物件地处稀少的三角地带区域,木造2层,时尚的外观,分A.B两栋,目前满室出租中,表面回报率5.86%,另外,物件可以申请日本银行贷款,首付4-5成,贷款利率2.9%,贷款周期25年。撬动杠杆不但可以增加收益,还降低了投资风险!欢迎咨询。
东京 世田谷区
东京(とうきょう、Tōkyō),是位于日本关东平原中部面向东京湾的国际大都市,日本三大都市圈之一东京都市圈的中心城市。“东京”狭义上指东京都、旧东京府或东京都区部(旧东京市),亦可泛指东京都市圈 。东京是江户幕府的所在地,江户在庆应4年7月(1868年9月)改名为东京。由于东京都包含了囊括了冲之鸟礁与南鸟岛的小笠原诸岛,所以东京都也是位于日本最南端以及最东端的都道府县。 地址:东京都世田谷区三轩茶屋2
交通:◇东急田园都市线【三轩茶屋】站徒步4分钟;
◇世田谷线【三轩茶屋】站徒步4分钟
您会在一个工作日内得到置业顾问的联络
Array
现在就与专业咨询顾问沟通!
中国
400-810-8810
日本
03-3830-0907
信息保护中请放心填写
微信咨询:
-
移民
-
房产
-
合作
-
公众号
日本房产投资移民线上、线下说明会!
Online & Offline Explanation Session of Japan Real Estate , Investment & Migrant
活动时间:线下说明会:2021年5月29日至11月19日;线上说明会:长期
活动地点:中国北京市朝阳区建国门外大街1号国贸写字楼1座1118-16室。详情请加微信:13331189026
说明会详情>
立即报名>

扫码关注我们
了解更多报名活动消息!
预约电话:13331189026
微信预约:13331189026