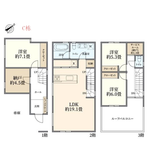
| 地址 | 东京都涩谷区东1 | ||
| 价格 | 人民币:939万 | 租金回报 | |
| 建筑年代 | 预计2020年7月下旬竣工 | 建筑结构 | 木造 |
| 房产面积 | >90㎡ | 土地面积 | 67.64㎡~ |
| 阳台面积 | 车库面积 | ||
| 总户数 | 3户 | 所在层 | 1-3 |
| 房型 | 3室1厅 3室1厅+2S | 朝向 | |
| 租赁情况 | 租金 | ||
| 管理费 | 修缮费 | ||
| 建蔽率 | 60% | 容积率 | 300%(160%) |
| 用途地域 | 第2种中高层住居专用地域 | 土地权利 | 永久产权 |
| 交通 | ◇JR山手线【涩谷】站徒步14分钟; ◇JR埼京线.湘南新宿ライン.东急东横线 .其他【涩谷】站徒步9分钟; ◇山手线.埼京线.其他【惠比寿】站徒步14分钟; ◇银座线.半蔵门线.千代田线【表参道】站徒步15分钟; ◇东急东横线【代官山】站徒步14分钟 | ||
白 吉 営業部
预计2020年7月下旬竣工的高级户建,全3户,永久产权,符合新抗震标准。位于东京都涩谷区,交通四通八达,12线4站可以利用,物件距【涩谷】站徒步9分钟,【惠比寿】站徒步14分钟,【表参道】站徒步15分钟,【代官山】站徒步14分钟,地理位置优越,都是一等地区,一流的条件。物件周边距生活超市徒步4分钟,区立小学校徒步3分钟,区立中学校徒步7分钟,区立保育园徒步4分钟,邮局徒步4分钟,警察署徒步9分钟,生活安全便利。物件室内生活配套设施齐全,玄关感应照明,客厅配置地暖,附带净水器及洗碗机的现代化厨具,24小时换气设备,收纳,节水性能马桶等。另外,物件可以申请日本银行贷款,首付4-5成,贷款利率2.9%,贷款周期25年。撬动杠杆不但可以增加收益,还降低了投资风险!欢迎咨询。
东京 渋谷区
东京(とうきょう、Tōkyō),是位于日本关东平原中部面向东京湾的国际大都市,日本三大都市圈之一东京都市圈的中心城市。“东京”狭义上指东京都、旧东京府或东京都区部(旧东京市),亦可泛指东京都市圈 。东京是江户幕府的所在地,江户在庆应4年7月(1868年9月)改名为东京。由于东京都包含了囊括了冲之鸟礁与南鸟岛的小笠原诸岛,所以东京都也是位于日本最南端以及最东端的都道府县。 地址:东京都涩谷区东1
交通:◇JR山手线【涩谷】站徒步14分钟;
◇JR埼京线.湘南新宿ライン.东急东横线 .其他【涩谷】站徒步9分钟;
◇山手线.埼京线.其他【惠比寿】站徒步14分钟;
◇银座线.半蔵门线.千代田线【表参道】站徒步15分钟;
◇东急东横线【代官山】站徒步14分钟
您会在一个工作日内得到置业顾问的联络
Array
现在就与专业咨询顾问沟通!
中国
400-810-8810
日本
03-3830-0907
信息保护中请放心填写
微信咨询:
-
移民
-
房产
-
合作
-
公众号
日本房产投资移民线上、线下说明会!
Online & Offline Explanation Session of Japan Real Estate , Investment & Migrant
活动时间:线下说明会:2021年5月29日至11月19日;线上说明会:长期
活动地点:中国北京市朝阳区建国门外大街1号国贸写字楼1座1118-16室。详情请加微信:13331189026
说明会详情>
立即报名>

扫码关注我们
了解更多报名活动消息!
预约电话:13331189026
微信预约:13331189026