| 地址 | 东京都府中市宫町3 | ||
| 价格 | 人民币:1235万 | 租金回报 | 5.8% |
| 建筑年代 | 预计2021年11月竣工 | 建筑结构 | 轻量铁骨造 |
| 房产面积 | >90㎡ | 土地面积 | 201.87㎡ |
| 阳台面积 | / | 车库面积 | / |
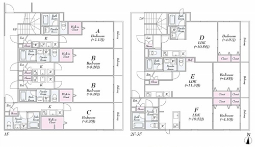
| 总户数 | 10户 | 所在层 | 1-3 |
| 房型 | 1室/1室1厅 | 朝向 | / |
| 租赁情况 | 建筑中 | 租金 | 约12,372,000日元/年 |
| 管理费 | / | 修缮费 | / |
| 建蔽率 | 60% | 容积率 | 200% |
| 用途地域 | 第一种中高层住居专业地域 | 土地权利 | 永久产权 |
| 交通 | ①京王线【府中】站徒步7分钟 ②JR武蔵野线【府中本町】站徒步12分钟 | ||
白 吉 営業部
预计2021年11月竣工,永久产权,符合新抗震标准。位于东京都府中市,2线2站可以利用,距最近【府中】站徒步7分钟,至新宿站26分钟。附近Foris购物商场徒步约6分钟,预定2021年夏季开业的Mitten商业设施徒步约6分钟,Le Signe复合商业设施徒步约7分钟,全家便利店徒步约4分钟,生活购物非常便利。物件东侧/北侧分别约4m公道,轻量铁骨造3层,全10户,充实的生活设备,门禁门,宅配快递箱,可视对讲机,厨具,空调,智能马桶,浴室换气烘干器,室内洗衣机放置处,双层玻璃窗,24小时换气设备,1F住户有卷帘门。我们协助海外投资客户申请日本银行贷款购房业务,需要在日本设立公司,以法人名义购买,贷款额度约60-70%、还款周期25-35年、贷款利率1.5%起。欢迎咨询。
东京 府中市
东京(とうきょう、Tōkyō),是位于日本关东平原中部面向东京湾的国际大都市,日本三大都市圈之一东京都市圈的中心城市。“东京”狭义上指东京都、旧东京府或东京都区部(旧东京市),亦可泛指东京都市圈 。东京是江户幕府的所在地,江户在庆应4年7月(1868年9月)改名为东京。由于东京都包含了囊括了冲之鸟礁与南鸟岛的小笠原诸岛,所以东京都也是位于日本最南端以及最东端的都道府县。 地址:东京都府中市宫町3
交通:①京王线【府中】站徒步7分钟
②JR武蔵野线【府中本町】站徒步12分钟
您会在一个工作日内得到置业顾问的联络
Array
现在就与专业咨询顾问沟通!
中国
400-810-8810
日本
03-3830-0907
信息保护中请放心填写
微信咨询:
-
移民
-
房产
-
合作
-
公众号
日本房产投资移民线上、线下说明会!
Online & Offline Explanation Session of Japan Real Estate , Investment & Migrant
活动时间:线下说明会:2021年5月29日至11月19日;线上说明会:长期
活动地点:中国北京市朝阳区建国门外大街1号国贸写字楼1座1118-16室。详情请加微信:13331189026
说明会详情>
立即报名>

扫码关注我们
了解更多报名活动消息!
预约电话:13331189026
微信预约:13331189026