| 地址 | |||
| 价格 | 人民币:2680万 | 租金回报 | |
| 建筑年代 | 2003年1月 | 建筑结构 | RC |
| 房产面积 | 土地面积 | ||
| 阳台面积 | 30.9 | 车库面积 | |
| 总户数 | 67戸 | 所在层 | 2階 |
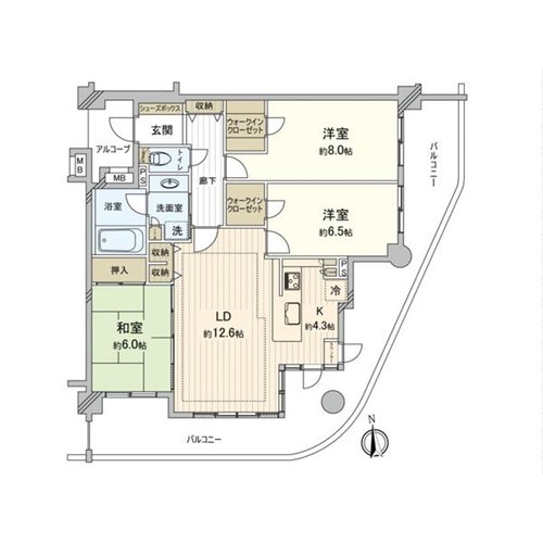
| 房型 | 3LDK | 朝向 | 南 |
| 租赁情况 | 租金 | ||
| 管理费 | 1万4075円/月 | 修缮费 | 1万1910円/月 |
| 建蔽率 | 容积率 | ||
| 用途地域 | 準工業 | 土地权利 | 所有権 |
| 交通 | 西武新宿線「小平」歩19分 西武拝島線「小平」歩19分 | ||
営業部
全室6帖以上、ウォークインクローゼット2箇所等収納も充実、南東の角部屋、ペットと暮らせます。■ おすすめポイント ━━━━━━━━━━━━━━━?????
○ オートロックエントランス
○ 2階部分 南東の角部屋
? 光が差し込み、とても開放感のあるお部屋です
○ 全室6帖以上、専有面積約85平米のゆったりとした3LDK
○ ダブルウォークインクローゼット等、収納スペースが充実
○ ペット飼育可(細則あり)
外観写真
※写真に誤りがある場合は
○ オートロックエントランス
○ 2階部分 南東の角部屋
? 光が差し込み、とても開放感のあるお部屋です
○ 全室6帖以上、専有面積約85平米のゆったりとした3LDK
○ ダブルウォークインクローゼット等、収納スペースが充実
○ ペット飼育可(細則あり)
外観写真
※写真に誤りがある場合は
东京 渋谷区
东京(とうきょう、Tōkyō),是位于日本关东平原中部面向东京湾的国际大都市,日本三大都市圈之一东京都市圈的中心城市。“东京”狭义上指东京都、旧东京府或东京都区部(旧东京市),亦可泛指东京都市圈 。东京是江户幕府的所在地,江户在庆应4年7月(1868年9月)改名为东京。由于东京都包含了囊括了冲之鸟礁与南鸟岛的小笠原诸岛,所以东京都也是位于日本最南端以及最东端的都道府县。 地址:
交通:西武新宿線「小平」歩19分 西武拝島線「小平」歩19分
您会在一个工作日内得到置业顾问的联络
Array
现在就与专业咨询顾问沟通!
中国
400-810-8810
日本
03-3830-0907
信息保护中请放心填写
微信咨询:
-
移民
-
房产
-
合作
-
公众号
日本房产投资移民线上、线下说明会!
Online & Offline Explanation Session of Japan Real Estate , Investment & Migrant
活动时间:线下说明会:2021年5月29日至11月19日;线上说明会:长期
活动地点:中国北京市朝阳区建国门外大街1号国贸写字楼1座1118-16室。详情请加微信:13331189026
说明会详情>
立即报名>

扫码关注我们
了解更多报名活动消息!
预约电话:13331189026
微信预约:13331189026