| 地址 | |||
| 价格 | 人民币:2980万 | 租金回报 | |
| 建筑年代 | 2009年2月 | 建筑结构 | RC |
| 房产面积 | 土地面积 | ||
| 阳台面积 | 7.76 | 车库面积 | |
| 总户数 | 29戸 | 所在层 | 1階 |
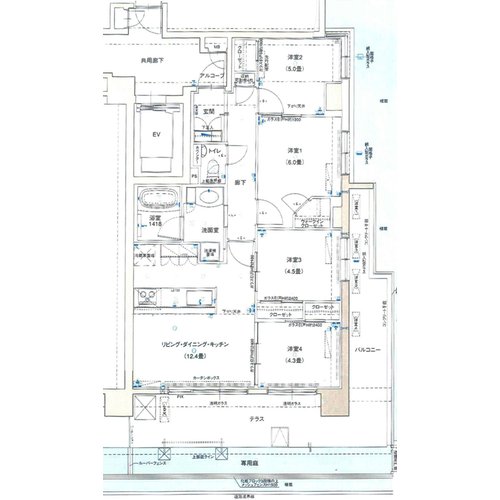
| 房型 | 4LDK | 朝向 | 南東 |
| 租赁情况 | 租金 | ||
| 管理费 | 1万4495円/月 | 修缮费 | 6980円/月 |
| 建蔽率 | 容积率 | ||
| 用途地域 | 1種中高 | 土地权利 | 所有権 |
| 交通 | 京王線「多磨霊園」歩10分 | ||
営業部
東南角部屋 ? ペット可の4LDK、専用庭付き、広々バルコニー、オール電化東南側から見た外観
※写真に誤りがある場合は
2980万円
[
]
4LDK
東京都府中市小柳町3
[
]
担当者
「SUUMO(スーモ)を見た」と問い合わせください
つながらない方、不動産会社の方は
免許番号:
※写真に誤りがある場合は
2980万円
[
]
4LDK
東京都府中市小柳町3
[
]
担当者
「SUUMO(スーモ)を見た」と問い合わせください
つながらない方、不動産会社の方は
免許番号:
东京 渋谷区
东京(とうきょう、Tōkyō),是位于日本关东平原中部面向东京湾的国际大都市,日本三大都市圈之一东京都市圈的中心城市。“东京”狭义上指东京都、旧东京府或东京都区部(旧东京市),亦可泛指东京都市圈 。东京是江户幕府的所在地,江户在庆应4年7月(1868年9月)改名为东京。由于东京都包含了囊括了冲之鸟礁与南鸟岛的小笠原诸岛,所以东京都也是位于日本最南端以及最东端的都道府县。 地址:
交通:京王線「多磨霊園」歩10分
您会在一个工作日内得到置业顾问的联络
Array
现在就与专业咨询顾问沟通!
中国
400-810-8810
日本
03-3830-0907
信息保护中请放心填写
微信咨询:
-
移民
-
房产
-
合作
-
公众号
日本房产投资移民线上、线下说明会!
Online & Offline Explanation Session of Japan Real Estate , Investment & Migrant
活动时间:线下说明会:2021年5月29日至11月19日;线上说明会:长期
活动地点:中国北京市朝阳区建国门外大街1号国贸写字楼1座1118-16室。详情请加微信:13331189026
说明会详情>
立即报名>

扫码关注我们
了解更多报名活动消息!
预约电话:13331189026
微信预约:13331189026