| 地址 | |||
| 价格 | 人民币:1300万 | 租金回报 | |
| 建筑年代 | 1981年7月 | 建筑结构 | RC |
| 房产面积 | 土地面积 | ||
| 阳台面积 | 7.7 | 车库面积 | |
| 总户数 | 12戸 | 所在层 | 3階 |
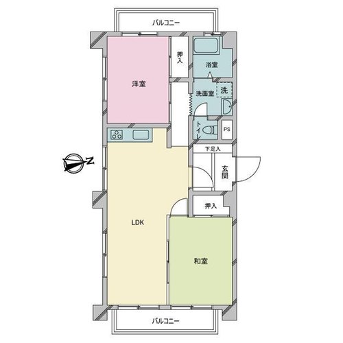
| 房型 | 2LDK | 朝向 | 東 |
| 租赁情况 | 租金 | ||
| 管理费 | 無(自主管理) | 修缮费 | 無 |
| 建蔽率 | 容积率 | ||
| 用途地域 | 近隣商業 | 土地权利 | 所有権 |
| 交通 | 京王線「東府中」歩2分 | ||
営業部
?3方向角住戸(東?南?西) 陽当り通風良好
?2面バルコニータイプ
?浴室に窓があります。
京王線「東府中」駅徒歩2分 駅近物件です。~ライフインフォメーション~
サミット東府中店まで約230m
ライフ東府中店まで約110m
りそな銀行東府中支店まで約70m
マンション外観
※写真に誤りがある場合は
現地案内会(事前に必ず予約してください)
日程/2月29日(土曜日)~3月1日(日曜日)
時間/10:00~18:00
(予約制内覧会
?2面バルコニータイプ
?浴室に窓があります。
京王線「東府中」駅徒歩2分 駅近物件です。~ライフインフォメーション~
サミット東府中店まで約230m
ライフ東府中店まで約110m
りそな銀行東府中支店まで約70m
マンション外観
※写真に誤りがある場合は
現地案内会(事前に必ず予約してください)
日程/2月29日(土曜日)~3月1日(日曜日)
時間/10:00~18:00
(予約制内覧会
东京 渋谷区
东京(とうきょう、Tōkyō),是位于日本关东平原中部面向东京湾的国际大都市,日本三大都市圈之一东京都市圈的中心城市。“东京”狭义上指东京都、旧东京府或东京都区部(旧东京市),亦可泛指东京都市圈 。东京是江户幕府的所在地,江户在庆应4年7月(1868年9月)改名为东京。由于东京都包含了囊括了冲之鸟礁与南鸟岛的小笠原诸岛,所以东京都也是位于日本最南端以及最东端的都道府县。 地址:
交通:京王線「東府中」歩2分
您会在一个工作日内得到置业顾问的联络
Array
现在就与专业咨询顾问沟通!
中国
400-810-8810
日本
03-3830-0907
信息保护中请放心填写
微信咨询:
-
移民
-
房产
-
合作
-
公众号
日本房产投资移民线上、线下说明会!
Online & Offline Explanation Session of Japan Real Estate , Investment & Migrant
活动时间:线下说明会:2021年5月29日至11月19日;线上说明会:长期
活动地点:中国北京市朝阳区建国门外大街1号国贸写字楼1座1118-16室。详情请加微信:13331189026
说明会详情>
立即报名>

扫码关注我们
了解更多报名活动消息!
预约电话:13331189026
微信预约:13331189026