| 地址 | |||
| 价格 | 人民币:3899万 | 租金回报 | |
| 建筑年代 | 1999年3月 | 建筑结构 | RC |
| 房产面积 | 土地面积 | ||
| 阳台面积 | 15.4 | 车库面积 | |
| 总户数 | 46戸 | 所在层 | 1階 |
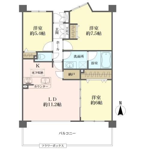
| 房型 | 3LDK+S(納戸) | 朝向 | 南 |
| 租赁情况 | 租金 | ||
| 管理费 | 9300円/月 | 修缮费 | 1万4190円/月 |
| 建蔽率 | 容积率 | ||
| 用途地域 | 2種中高 | 土地权利 | 所有権 |
| 交通 | JR中央線「東小金井」歩11分 | ||
営業部
◇2019年8月リフォーム完了
◇家具付き物件※小物等は含みません
◇バルコニー南面ワイドフロンテージ7.7m&アウトフレーム
◇リビングダイニング天井高約2.55m◇JR中央線「東小金井」駅まで徒歩13分
◇ペット飼育可(細則有)※但し、犬猫は飼育不可
サンドラッグ小金井梶野町店まで徒歩2分(140m)、セブンイレブン武蔵野アジア大学通り店まで徒歩3分(210m)、いなげや武蔵野桜堤店まで徒歩10分(740m) ?、エレベーター、駐車場、駐輪場、バイク置き場、一階部分3LD
◇家具付き物件※小物等は含みません
◇バルコニー南面ワイドフロンテージ7.7m&アウトフレーム
◇リビングダイニング天井高約2.55m◇JR中央線「東小金井」駅まで徒歩13分
◇ペット飼育可(細則有)※但し、犬猫は飼育不可
サンドラッグ小金井梶野町店まで徒歩2分(140m)、セブンイレブン武蔵野アジア大学通り店まで徒歩3分(210m)、いなげや武蔵野桜堤店まで徒歩10分(740m) ?、エレベーター、駐車場、駐輪場、バイク置き場、一階部分3LD
东京 渋谷区
东京(とうきょう、Tōkyō),是位于日本关东平原中部面向东京湾的国际大都市,日本三大都市圈之一东京都市圈的中心城市。“东京”狭义上指东京都、旧东京府或东京都区部(旧东京市),亦可泛指东京都市圈 。东京是江户幕府的所在地,江户在庆应4年7月(1868年9月)改名为东京。由于东京都包含了囊括了冲之鸟礁与南鸟岛的小笠原诸岛,所以东京都也是位于日本最南端以及最东端的都道府县。 地址:
交通:JR中央線「東小金井」歩11分
您会在一个工作日内得到置业顾问的联络
Array
现在就与专业咨询顾问沟通!
中国
400-810-8810
日本
03-3830-0907
信息保护中请放心填写
微信咨询:
-
移民
-
房产
-
合作
-
公众号
日本房产投资移民线上、线下说明会!
Online & Offline Explanation Session of Japan Real Estate , Investment & Migrant
活动时间:线下说明会:2021年5月29日至11月19日;线上说明会:长期
活动地点:中国北京市朝阳区建国门外大街1号国贸写字楼1座1118-16室。详情请加微信:13331189026
说明会详情>
立即报名>

扫码关注我们
了解更多报名活动消息!
预约电话:13331189026
微信预约:13331189026