| 地址 | 东京都江东区扇桥1 | ||
| 价格 | 人民币:2478万 | 租金回报 | 4.9%(预计) |
| 建筑年代 | 预计2020年2月竣工 | 建筑结构 | 钢筋混凝土造 |
| 房产面积 | >90㎡ | 土地面积 | 158.80㎡ |
| 阳台面积 | 车库面积 | ||
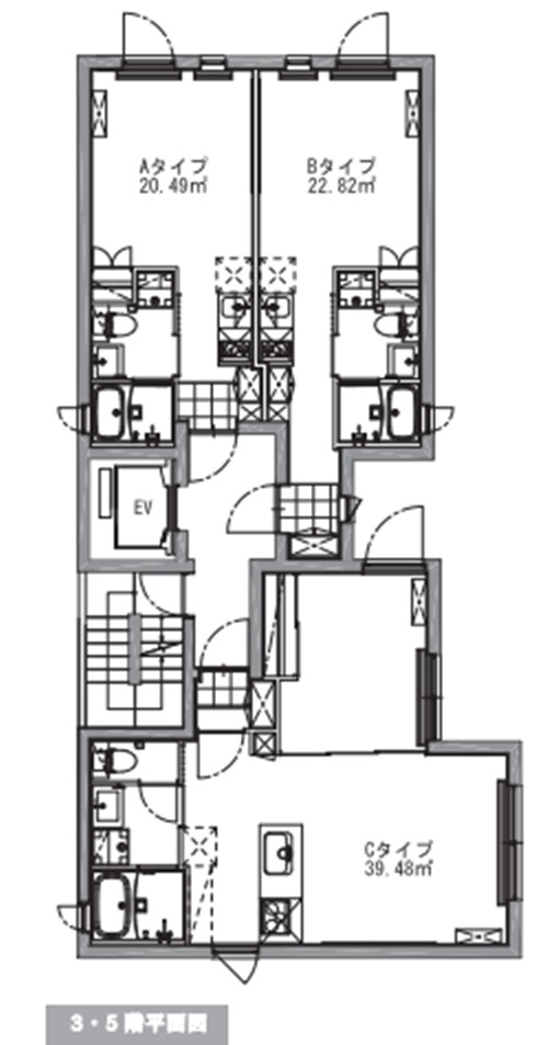
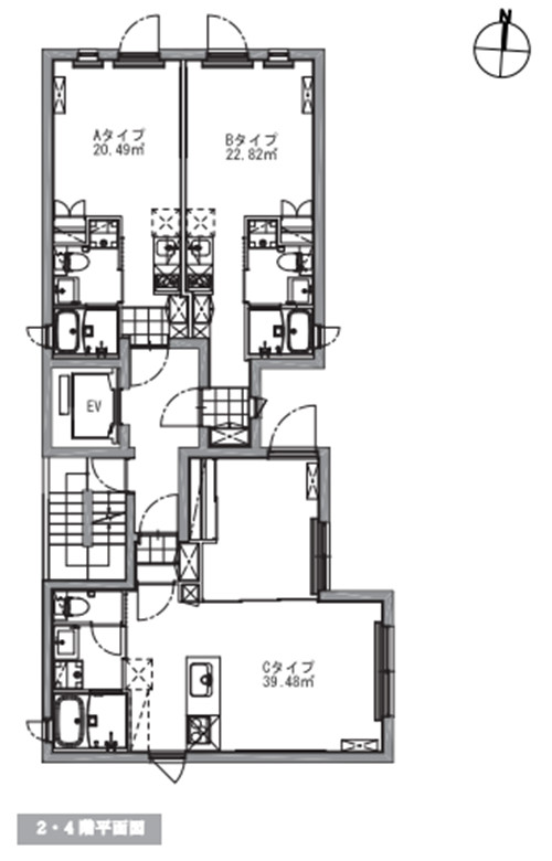
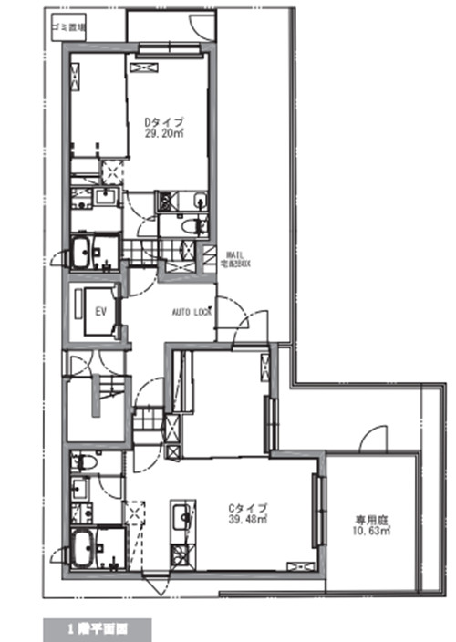
| 总户数 | 14户 | 所在层 | 1-5 |
| 房型 | 1室×8户 1室1厅×6户 | 朝向 | |
| 租赁情况 | 租金 | 约18,660,000日元/年 | |
| 管理费 | 修缮费 | ||
| 建蔽率 | 60%.80% | 容积率 | 300%.400% |
| 用途地域 | 商业地域.准工业地域 | 土地权利 | 永久产权 |
| 交通 | 东京メトロ半蔵门线.都营新宿线住吉站徒步9分钟 | ||
柏 青 営業部
预计2020年2月竣工整栋投资公寓,永久产权,符合新抗震标准。位于东京都江东区,这里常年被生机勃勃的绿色植物与运河所包围,环境优美。交通便利,距最近车站住吉站徒步9分钟,通往锦系町站直通1分钟,大手町站直通10分钟,银座站13分钟,涩谷站直通27分钟,新宿站直通22分钟,六本木站24分钟。公寓入口左右非对称的外观突出了个性设计感,配有电梯,为上层住户减轻了移动的负担,全户角住户,采光通风均良好,有收纳,浴室设有窗户,可保持良好的换气,卫浴分离,全14户,室内面积20.49㎡-39.48㎡不等,1层住户有专用庭可使用,其他部分住户是采用对面式厨房,每户各有特点,多样的设计可满足住户的不同选择和需求,室内生活配套设施齐全,居住便利舒适。年租金约18,660,000日元,表面回报率4.9%,非常适合投资。另外,物件可以申请日本银行贷款,首付4-5成,贷款利率2.9%,贷款周期25年。撬动杠杆不但可以增加收益,还降低了投资风险!
东京 江东区
东京(とうきょう、Tōkyō),是位于日本关东平原中部面向东京湾的国际大都市,日本三大都市圈之一东京都市圈的中心城市。“东京”狭义上指东京都、旧东京府或东京都区部(旧东京市),亦可泛指东京都市圈 。东京是江户幕府的所在地,江户在庆应4年7月(1868年9月)改名为东京。由于东京都包含了囊括了冲之鸟礁与南鸟岛的小笠原诸岛,所以东京都也是位于日本最南端以及最东端的都道府县。 地址:东京都江东区扇桥1
交通:东京メトロ半蔵门线.都营新宿线住吉站徒步9分钟
您会在一个工作日内得到置业顾问的联络
Array
现在就与专业咨询顾问沟通!
中国
400-810-8810
日本
03-3830-0907
信息保护中请放心填写
微信咨询:
-
移民
-
房产
-
合作
-
公众号
日本房产投资移民线上、线下说明会!
Online & Offline Explanation Session of Japan Real Estate , Investment & Migrant
活动时间:线下说明会:2021年5月29日至11月19日;线上说明会:长期
活动地点:中国北京市朝阳区建国门外大街1号国贸写字楼1座1118-16室。详情请加微信:13331189026
说明会详情>
立即报名>

扫码关注我们
了解更多报名活动消息!
预约电话:13331189026
微信预约:13331189026