| 地址 | 东京都三鹰市井口 | ||
| 价格 | 人民币:1073万 | 租金回报 | 6.2%(预计) |
| 建筑年代 | 预计2020年2月 | 建筑结构 | |
| 房产面积 | >90㎡ | 土地面积 | 136.74㎡ |
| 阳台面积 | 车库面积 | ||
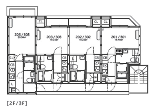
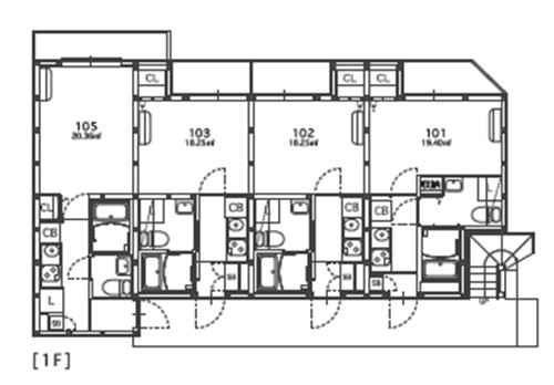
| 总户数 | 12户 | 所在层 | 1-3 |
| 房型 | 1室 | 朝向 | |
| 租赁情况 | 租金 | 约10,080,000日元/年 | |
| 管理费 | 修缮费 | ||
| 建蔽率 | 70% | 容积率 | 200% |
| 用途地域 | 第1层中高层住居专用地域 | 土地权利 | 永久产权 |
| 交通 | JR中央线武蔵境站徒步9分钟 | ||
翁 財興 営業部
预计2020年2月竣工的整栋公寓,永久产权,位于东京都三鹰市, 这里因著名的三鹰之森吉トカ美术馆而广为大家熟知。交通便捷,距最近车站武蔵境站徒步9分钟,车站周边伊藤洋华堂商场,多家学府等生活设施齐全,生活便利。公寓室内采光通风均良好,配有可视对讲机,独立洗面台,卫浴分离,空调,温水洗净功能马桶,收纳等,年租金约10,080,000日元,表面回报率达6.2%,另外,物件可以申请日本银行贷款,首付4-5成,贷款利率2.9%,贷款周期25年。撬动杠杆不但可以增加收益,还降低了投资风险!
东京 三鹰市
东京(とうきょう、Tōkyō),是位于日本关东平原中部面向东京湾的国际大都市,日本三大都市圈之一东京都市圈的中心城市。“东京”狭义上指东京都、旧东京府或东京都区部(旧东京市),亦可泛指东京都市圈 。东京是江户幕府的所在地,江户在庆应4年7月(1868年9月)改名为东京。由于东京都包含了囊括了冲之鸟礁与南鸟岛的小笠原诸岛,所以东京都也是位于日本最南端以及最东端的都道府县。 地址:东京都三鹰市井口
交通:JR中央线武蔵境站徒步9分钟
您会在一个工作日内得到置业顾问的联络
Array
现在就与专业咨询顾问沟通!
中国
400-810-8810
日本
03-3830-0907
信息保护中请放心填写
微信咨询:
-
移民
-
房产
-
合作
-
公众号
日本房产投资移民线上、线下说明会!
Online & Offline Explanation Session of Japan Real Estate , Investment & Migrant
活动时间:线下说明会:2021年5月29日至11月19日;线上说明会:长期
活动地点:中国北京市朝阳区建国门外大街1号国贸写字楼1座1118-16室。详情请加微信:13331189026
说明会详情>
立即报名>

扫码关注我们
了解更多报名活动消息!
预约电话:13331189026
微信预约:13331189026