| 地址 | 东京都江东区永代1 | ||
| 价格 | 人民币:2796万 | 租金回报 | 4.50%(预计) |
| 建筑年代 | 预计2019年11月 | 建筑结构 | 钢筋混凝土造 |
| 房产面积 | >90㎡ | 土地面积 | 170.64㎡ |
| 阳台面积 | 车库面积 | ||
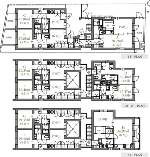
| 总户数 | 14户 | 所在层 | 1-4 |
| 房型 | 1室×4户 1室1厅×10户 | 朝向 | |
| 租赁情况 | 租金 | 约19,068,000日元/年 | |
| 管理费 | 修缮费 | ||
| 建蔽率 | 60% | 容积率 | 300% |
| 用途地域 | 准工业地域 | 土地权利 | 永久产权 |
| 交通 | 东京メトロ东西线 .都营大江户线门前仲町站徒步9分钟 | ||
翁 財興 営業部
公寓预计2019年11月建成,永久产权,符合新抗震标准。位于东京都江东区,交通便利,2条线路可以利用,距最近车站门前仲町站徒步9分钟,车站周边以商店,饮食店及办公楼为中心,生活便利,地理位置优越,通往大手町站直通5分钟,银座站7分钟,东京站6分钟,新宿站17分钟,饭田桥站直通12分钟,六本木站直通17分钟。公寓临近公园,环境舒适,全户角住户,室内采光通风均良好,开放的共用空间,1层住户附有专用庭,使用便利,室内面积17.57㎡-38.28㎡不等,生活配套设施齐全,有足够的收纳空间。 另外,物件可以申请日本银行贷款,首付4-5成,贷款利率2.9%,贷款周期25年。撬动杠杆不但可以增加收益,还降低了投资风险!
东京 江东区
东京(とうきょう、Tōkyō),是位于日本关东平原中部面向东京湾的国际大都市,日本三大都市圈之一东京都市圈的中心城市。“东京”狭义上指东京都、旧东京府或东京都区部(旧东京市),亦可泛指东京都市圈 。东京是江户幕府的所在地,江户在庆应4年7月(1868年9月)改名为东京。由于东京都包含了囊括了冲之鸟礁与南鸟岛的小笠原诸岛,所以东京都也是位于日本最南端以及最东端的都道府县。 地址:东京都江东区永代1
交通:东京メトロ东西线 .都营大江户线门前仲町站徒步9分钟
您会在一个工作日内得到置业顾问的联络
Array
现在就与专业咨询顾问沟通!
中国
400-810-8810
日本
03-3830-0907
信息保护中请放心填写
微信咨询:
-
移民
-
房产
-
合作
-
公众号
日本房产投资移民线上、线下说明会!
Online & Offline Explanation Session of Japan Real Estate , Investment & Migrant
活动时间:线下说明会:2021年5月29日至11月19日;线上说明会:长期
活动地点:中国北京市朝阳区建国门外大街1号国贸写字楼1座1118-16室。详情请加微信:13331189026
说明会详情>
立即报名>

扫码关注我们
了解更多报名活动消息!
预约电话:13331189026
微信预约:13331189026