| 地址 | 东京都中央区日本桥 | ||
| 价格 | 人民币:7520万 | 租金回报 | 4.4%(预计) |
| 建筑年代 | 2019年3月 | 建筑结构 | 钢筋混凝土造 |
| 房产面积 | >90㎡ | 土地面积 | 162.63㎡ |
| 阳台面积 | 车库面积 | ||
| 总户数 | 19户 | 所在层 | 1-10 |
| 房型 | 1室1厅× 9户 2室1厅×9户 店铺×1户 | 朝向 | |
| 租赁情况 | 租金 | 约50,926,680日元/年/满室 | |
| 管理费 | 修缮费 | ||
| 建蔽率 | 80% | 容积率 | 600% |
| 用途地域 | 商业地域 | 土地权利 | 永久产权 |
| 交通 | 都营浅草线东日本桥站徒步2分钟; 总武线馬喰町站徒步3分钟; 都营新宿线馬喰横山站徒步3分钟; 中央总武线/都营浅草线浅草桥站徒步8分钟; 日比谷线小伝馬町站徒步10分钟 | ||
営業部
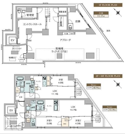
2019年3月新建成的整栋高级公寓,永久产权,符合新抗震标准。位于东京都中央区,交通便利,6线路5站可以利用,距最近车站东日本桥站徒步2分钟,其他车站徒步均10分钟内可到达,通往浅草站直通4分钟,新桥站直通8分钟,东京站直通14分钟,新宿站20分钟,池袋站27分钟,地理位置优越。公寓坐落于拥有着从江户时代经营的老店铺和大型商业设施的传统文化街区,周边公园,绿地郁郁葱葱,环境优美。购物方便,罗森,7-11,全家等多家便利店,多家超市均徒步5分钟内便可到达,生活便利。公寓钢筋混凝土造地上10层,全19户,其中1层店铺,面积11.17㎡,2-10层住居,1室1厅9户,面积40.94㎡,2室1厅9户,面积53.18㎡,室内采光,通风均良好,生活设施齐全,配有自动锁,快递箱,全户空调,照明器具等,满室出租的情况,年租金约50,926,680日元,表面回报率达4.4%,另外,物件可以申请日本银行贷款,首付4-5成,贷款利率2.9%,贷款周期25年。撬动杠杆不但可以增加收益,还降低了投资风险!
东京 中央区
东京(とうきょう、Tōkyō),是位于日本关东平原中部面向东京湾的国际大都市,日本三大都市圈之一东京都市圈的中心城市。“东京”狭义上指东京都、旧东京府或东京都区部(旧东京市),亦可泛指东京都市圈 。东京是江户幕府的所在地,江户在庆应4年7月(1868年9月)改名为东京。由于东京都包含了囊括了冲之鸟礁与南鸟岛的小笠原诸岛,所以东京都也是位于日本最南端以及最东端的都道府县。 地址:东京都中央区日本桥
交通:都营浅草线东日本桥站徒步2分钟;
总武线馬喰町站徒步3分钟;
都营新宿线馬喰横山站徒步3分钟;
中央总武线/都营浅草线浅草桥站徒步8分钟;
日比谷线小伝馬町站徒步10分钟
您会在一个工作日内得到置业顾问的联络
Array
现在就与专业咨询顾问沟通!
中国
400-810-8810
日本
03-3830-0907
信息保护中请放心填写
微信咨询:
-
移民
-
房产
-
合作
-
公众号
日本房产投资移民线上、线下说明会!
Online & Offline Explanation Session of Japan Real Estate , Investment & Migrant
活动时间:线下说明会:2021年5月29日至11月19日;线上说明会:长期
活动地点:中国北京市朝阳区建国门外大街1号国贸写字楼1座1118-16室。详情请加微信:13331189026
说明会详情>
立即报名>

扫码关注我们
了解更多报名活动消息!
预约电话:13331189026
微信预约:13331189026