| 地址 | 东京都江东区猿江1-8-6 | ||
| 价格 | 人民币:2231万 | 租金回报 | 4.8%(预计) |
| 建筑年代 | 2019年6月 | 建筑结构 | 钢筋混凝土造 |
| 房产面积 | >90㎡ | 土地面积 | 111.38㎡ |
| 阳台面积 | 车库面积 | ||
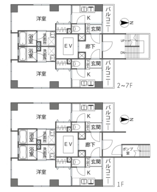
| 总户数 | 14户 | 所在层 | 1-7 |
| 房型 | 1室 | 朝向 | 北 |
| 租赁情况 | 满室出租中 | 租金 | 约16,200,000日元/年/满室(合计管理费) |
| 管理费 | 修缮费 | ||
| 建蔽率 | 60% | 容积率 | 300% |
| 用途地域 | 准工业地域 | 土地权利 | 永久产权 |
| 交通 | 东京メトロ半蔵门线住吉站徒步6分钟; 都营新宿线住吉站徒步6分钟 | ||
林 武振 営業部
公寓2019年6月新建,永久产权,符合新抗震标准。位于东京都江东区,交通便利,2条路线可以利用,距最近车站住吉站徒步6分钟,地理位置优越,通往大手町站直通10分钟,浅草站13分钟,银座站14分钟,品川站18分钟,直通新宿站21分钟,直通涩谷站27分钟,羽田机场20分钟。周边距7-11便利店约130m,ライフ超市约350,罗森便利店约400m,アリオ北砂商场约1.8km,不仅购物设施齐全,还具备医疗机构,猿江恩赐公园,小名木川樱並木公园,东京都现代美术馆等,环境优美,生活便利。公寓楼共7层,每层2户,全14户,1室,各室面积23.42㎡,根据楼层月租91,000日元/月-101,000日元/月不等,生活设配齐全,自动锁,配备空调,浴室换气烘干器,温水洗净功能马桶,24小时安心入居服务,目前满室出租中,表面回报率达4.8%,另外,物件可以申请日本银行贷款,首付4-5成,贷款利率2.9%,贷款周期25年。撬动杠杆不但可以增加收益,还降低了投资风险!
东京 江东区
东京(とうきょう、Tōkyō),是位于日本关东平原中部面向东京湾的国际大都市,日本三大都市圈之一东京都市圈的中心城市。“东京”狭义上指东京都、旧东京府或东京都区部(旧东京市),亦可泛指东京都市圈 。东京是江户幕府的所在地,江户在庆应4年7月(1868年9月)改名为东京。由于东京都包含了囊括了冲之鸟礁与南鸟岛的小笠原诸岛,所以东京都也是位于日本最南端以及最东端的都道府县。 地址:东京都江东区猿江1-8-6
交通:东京メトロ半蔵门线住吉站徒步6分钟;
都营新宿线住吉站徒步6分钟
您会在一个工作日内得到置业顾问的联络
Array
现在就与专业咨询顾问沟通!
中国
400-810-8810
日本
03-3830-0907
信息保护中请放心填写
微信咨询:
-
移民
-
房产
-
合作
-
公众号
日本房产投资移民线上、线下说明会!
Online & Offline Explanation Session of Japan Real Estate , Investment & Migrant
活动时间:线下说明会:2021年5月29日至11月19日;线上说明会:长期
活动地点:中国北京市朝阳区建国门外大街1号国贸写字楼1座1118-16室。详情请加微信:13331189026
说明会详情>
立即报名>

扫码关注我们
了解更多报名活动消息!
预约电话:13331189026
微信预约:13331189026