| 地址 | 东京都足立区柳原1-9-6 | ||
| 价格 | 人民币:1568万 | 租金回报 | 5.51%(预计) |
| 建筑年代 | 2019年2月 | 建筑结构 | 钢筋混凝土造 |
| 房产面积 | >90㎡ | 土地面积 | 108.09㎡ |
| 阳台面积 | 车库面积 | ||
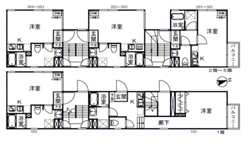
| 总户数 | 14户 | 所在层 | 1-5 |
| 房型 | 1室×14户 | 朝向 | |
| 租赁情况 | 满室出租中 | 租金 | 约13,512,000日元/年/满室 |
| 管理费 | 修缮费 | ||
| 建蔽率 | 80% | 容积率 | 300% |
| 用途地域 | 近邻商业地域 | 土地权利 | 永久产权 |
| 交通 | JR各线 . 东京メトロ千代田线北千住站徒步11分钟; 京成本线京成关屋站徒步7分钟; 东武スカイツリ-ライン牛田站徒步7分钟 | ||
翁 財興 営業部
公寓2019年2月新建,符合新抗震标准,永久产权。位于东京都足立区,地理位置优越,3站6路线可利用,周边生活便利,购物方便,北千住车站丸井商场,ルミネ商场,饮食商店街,医院等生活配套设施齐全。周边有很多大学和企业,公寓楼钢筋混凝土造,全14户,1室,室内空调,可视对讲机,浴室烘干器,24小时故障支援服务等设施齐全,目前满室出租中,表面回报率达5.51%,非常适合投资。另外,物件可以申请日本银行贷款,首付4-5成,贷款利率2.9%,贷款周期25年。撬动杠杆不但可以增加收益,还降低了投资风险!
东京 足立区
东京(とうきょう、Tōkyō),是位于日本关东平原中部面向东京湾的国际大都市,日本三大都市圈之一东京都市圈的中心城市。“东京”狭义上指东京都、旧东京府或东京都区部(旧东京市),亦可泛指东京都市圈 。东京是江户幕府的所在地,江户在庆应4年7月(1868年9月)改名为东京。由于东京都包含了囊括了冲之鸟礁与南鸟岛的小笠原诸岛,所以东京都也是位于日本最南端以及最东端的都道府县。 地址:东京都足立区柳原1-9-6
交通:JR各线 . 东京メトロ千代田线北千住站徒步11分钟;
京成本线京成关屋站徒步7分钟;
东武スカイツリ-ライン牛田站徒步7分钟
您会在一个工作日内得到置业顾问的联络
Array
现在就与专业咨询顾问沟通!
中国
400-810-8810
日本
03-3830-0907
信息保护中请放心填写
微信咨询:
-
移民
-
房产
-
合作
-
公众号
日本房产投资移民线上、线下说明会!
Online & Offline Explanation Session of Japan Real Estate , Investment & Migrant
活动时间:线下说明会:2021年5月29日至11月19日;线上说明会:长期
活动地点:中国北京市朝阳区建国门外大街1号国贸写字楼1座1118-16室。详情请加微信:13331189026
说明会详情>
立即报名>

扫码关注我们
了解更多报名活动消息!
预约电话:13331189026
微信预约:13331189026