| 地址 | 东京都新宿区荒木町11 | ||
| 价格 | 人民币:3364万 | 租金回报 | 预计3.81 % |
| 建筑年代 | 预计2020年12月末竣工 | 建筑结构 | 钢筋混凝土造 |
| 房产面积 | >90㎡ | 土地面积 | 155.39㎡ |
| 阳台面积 | 车库面积 | ||
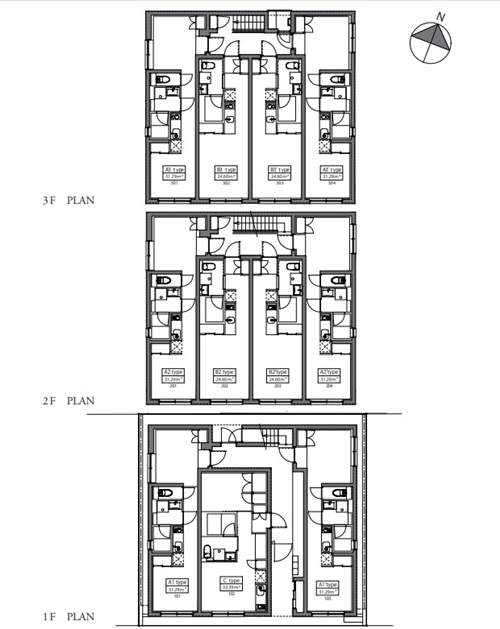
| 总户数 | 11户 | 所在层 | 1-3 |
| 房型 | 朝向 | ||
| 租赁情况 | 租金 | 约20,088,000日元/年 | |
| 管理费 | 修缮费 | ||
| 建蔽率 | 80% | 容积率 | 400% |
| 用途地域 | 商业地域 | 土地权利 | 永久产权 |
| 交通 | ◇都营新宿线【曙桥】站徒步4分钟; ◇东京メトロ丸ノ内线【四谷三丁目】站徒步6分钟; ◇JR中央线.东京メトロ丸ノ内线【四ツ谷】站徒步12分钟 | ||
柏 青 営業部
预计2020年12月末竣工的整栋投资公寓,永久产权,符合新抗震标准。位于东京都新宿区,3线3站可以利用,距最近【曙桥】站徒步4分钟,交通便捷,直通新宿站3分钟,直通银座站11分钟,直通东京站13分钟,通往涩谷站8分钟,麻布十番站9分钟。物件钢筋混凝土造3层,共用部分设置安全系统设备,宅配快递箱,入口采用瓷砖地板和间接照明,全11户,室内靠近道路的一边采用大型窗户,考虑到采光及通风的同时,还可以看到外面的公园,营造出具有开放感的生活空间,生活配套设施齐全,收纳丰富.另外,物件可以申请日本银行贷款,首付4-5成,贷款利率2.9%,贷款周期25年。撬动杠杆不但可以增加收益,还降低了投资风险!欢迎咨询。
东京 新宿区
东京(とうきょう、Tōkyō),是位于日本关东平原中部面向东京湾的国际大都市,日本三大都市圈之一东京都市圈的中心城市。“东京”狭义上指东京都、旧东京府或东京都区部(旧东京市),亦可泛指东京都市圈 。东京是江户幕府的所在地,江户在庆应4年7月(1868年9月)改名为东京。由于东京都包含了囊括了冲之鸟礁与南鸟岛的小笠原诸岛,所以东京都也是位于日本最南端以及最东端的都道府县。 地址:东京都新宿区荒木町11
交通:◇都营新宿线【曙桥】站徒步4分钟;
◇东京メトロ丸ノ内线【四谷三丁目】站徒步6分钟;
◇JR中央线.东京メトロ丸ノ内线【四ツ谷】站徒步12分钟
您会在一个工作日内得到置业顾问的联络
Array
现在就与专业咨询顾问沟通!
中国
400-810-8810
日本
03-3830-0907
信息保护中请放心填写
微信咨询:
-
移民
-
房产
-
合作
-
公众号
日本房产投资移民线上、线下说明会!
Online & Offline Explanation Session of Japan Real Estate , Investment & Migrant
活动时间:线下说明会:2021年5月29日至11月19日;线上说明会:长期
活动地点:中国北京市朝阳区建国门外大街1号国贸写字楼1座1118-16室。详情请加微信:13331189026
说明会详情>
立即报名>

扫码关注我们
了解更多报名活动消息!
预约电话:13331189026
微信预约:13331189026